Description
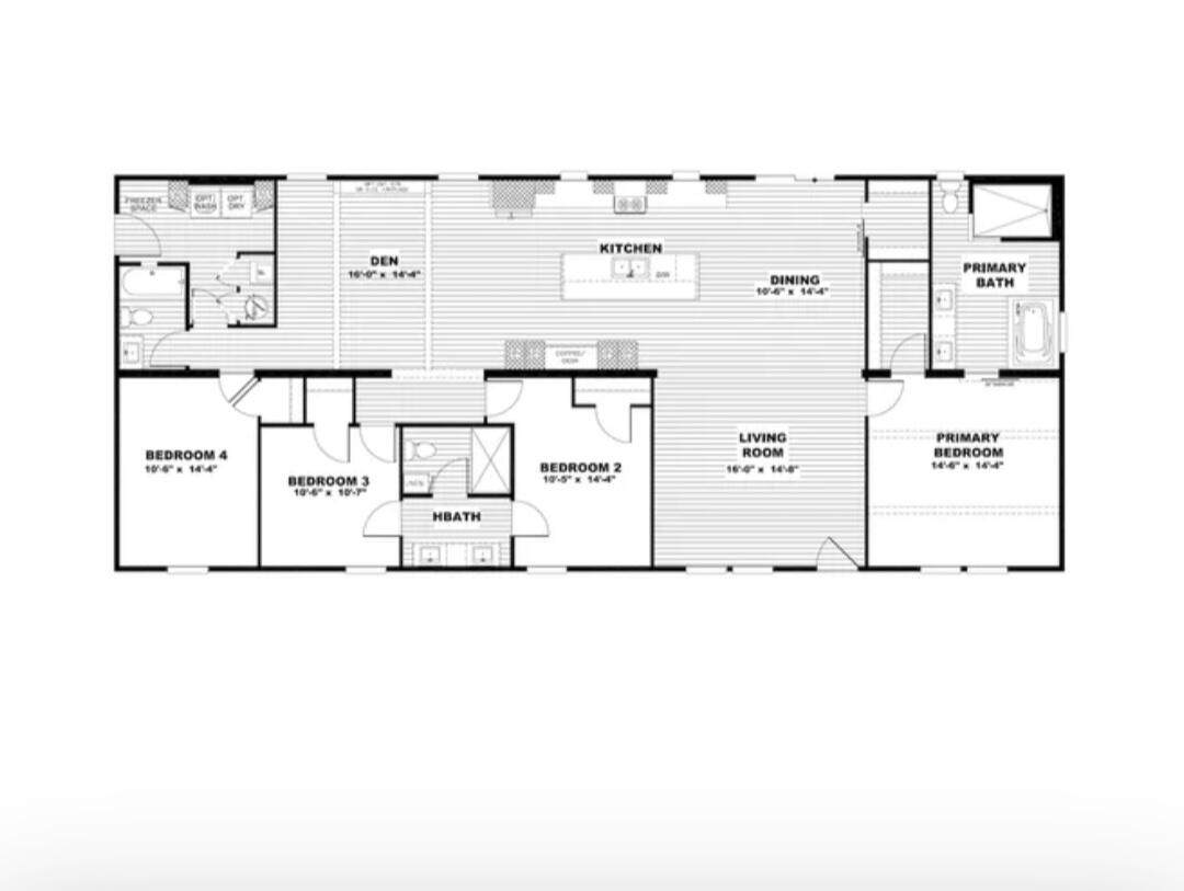
Welcome to 8590 Paxville Highway in Manning, where modern comfort meets peaceful country living on a spacious 1.5-acre lot. This brand-new 2025 Clayton manufactured home offers 4 bedrooms, 3 full baths, and 2,160 square feet of beautifully designed living space that feels open, inviting, and functional. The bright, open-concept floor plan is ideal for both everyday living and entertaining, featuring a formal living room, a stunning kitchen with an oversized island, abundant cabinetry, and a full stainless-steel appliance package, plus a separate den highlighted by beamed ceilings and an electric fireplace for cozy evenings at home. The primary suite is a true retreat with a spa-inspired bath including dual vanities, a soaking tub, and a walk-in shower, while three additional bedrooms provide excellent flexibility for family, guests, or a home office. Conveniently located just minutes from downtown Manning, Lake Marion, and I-95, this property offers the perfect balance of quiet rural charm and modern convenience. An additional 2+ acres is also available for purchase, providing room to expand, add outdoor amenities, or invest in future possibilities. Homes offering this combination of new construction, acreage, and proximity to Lake Marion are in high demand—schedule your showing today and secure this exceptional opportunity.
-
4BEDS
-
1.5ACRES
-
3BATHS
-
01/2 BATHS
-
2,160SQFT
-
$137$/SQFT
School Information
Description
Welcome to 8590 Paxville Highway in Manning, where modern comfort meets peaceful country living on a spacious 1.5-acre lot. This brand-new 2025 Clayton manufactured home offers 4 bedrooms, 3 full baths, and 2,160 square feet of beautifully designed living space that feels open, inviting, and functional. The bright, open-concept floor plan is ideal for both everyday living and entertaining, featuring a formal living room, a stunning kitchen with an oversized island, abundant cabinetry, and a full stainless-steel appliance package, plus a separate den highlighted by beamed ceilings and an electric fireplace for cozy evenings at home. The primary suite is a true retreat with a spa-inspired bath including dual vanities, a soaking tub, and a walk-in shower, while three additional bedrooms provide excellent flexibility for family, guests, or a home office. Conveniently located just minutes from downtown Manning, Lake Marion, and I-95, this property offers the perfect balance of quiet rural charm and modern convenience. An additional 2+ acres is also available for purchase, providing room to expand, add outdoor amenities, or invest in future possibilities. Homes offering this combination of new construction, acreage, and proximity to Lake Marion are in high demand—schedule your showing today and secure this exceptional opportunity.
© 2026 Sumter Board of Realtors. All rights reserved. IDX information is provided exclusively for consumers' personal, non-commercial use and may not be used for any purpose other than to identify prospective properties consumers may be interested in purchasing. Information is deemed reliable but is not guaranteed accurate by the MLS or Gaymon Realty Group. Data last updated: 2026-01-17T15:48:14.13.
