Description
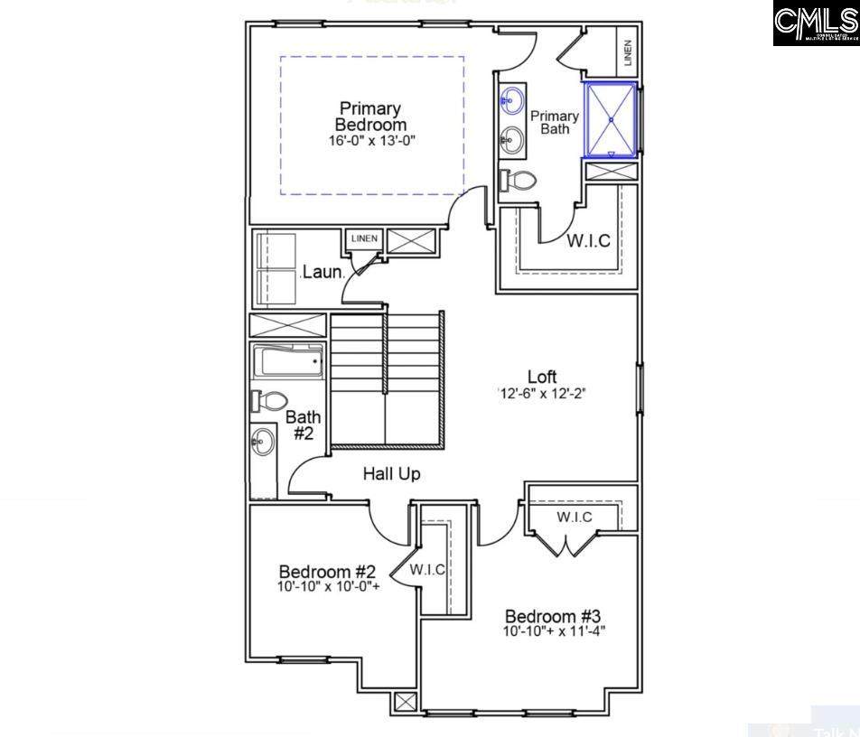
*UP TO $8,500 IN CLOSING COSTS WITH PARTNER LENDER AND ATTORNEY* Enjoy living in Bluefield—the only community in Lexington with a lazy river! The Highland plan is a two-story, three bedroom, two-and-one-half bathroom home with walk-in closets in all bedrooms. Upon entry, you are greeted by the open great room, eat-in, and kitchen, complete with an island and amazing space for entertaining. A corner pantry and closet under the stairs provides ample space for storage! Upstairs, you will find all bedrooms. The primary suite includes a linen closet in the bathroom, a spacious walk-in closet, and a large walk-in shower. A bonus loft area separates the two secondary bedrooms from the primary. Enjoy cookouts and entertain on the back covered porch! Call for more information. Disclaimer: CMLS has not reviewed and, therefore, does not endorse vendors who may appear in listings.
-
3BEDS
-
0.12ACRES
-
2BATHS
-
11/2 BATHS
-
1,818SQFT
-
$152$/SQFT
School Information
Description
*UP TO $8,500 IN CLOSING COSTS WITH PARTNER LENDER AND ATTORNEY* Enjoy living in Bluefield—the only community in Lexington with a lazy river! The Highland plan is a two-story, three bedroom, two-and-one-half bathroom home with walk-in closets in all bedrooms. Upon entry, you are greeted by the open great room, eat-in, and kitchen, complete with an island and amazing space for entertaining. A corner pantry and closet under the stairs provides ample space for storage! Upstairs, you will find all bedrooms. The primary suite includes a linen closet in the bathroom, a spacious walk-in closet, and a large walk-in shower. A bonus loft area separates the two secondary bedrooms from the primary. Enjoy cookouts and entertain on the back covered porch! Call for more information. Disclaimer: CMLS has not reviewed and, therefore, does not endorse vendors who may appear in listings.
Related Properties
© 2026 Consolidated Multiple Listing Service, Inc. All rights reserved. IDX information is provided exclusively for consumers' personal, non-commercial use and may not be used for any purpose other than to identify prospective properties consumers may be interested in purchasing. Information is deemed reliable but is not guaranteed accurate by the MLS or Gaymon Realty Group. Data last updated: 2026-03-07T09:40:10.837.
